双速异步电动机的原理图及实物接线图的详细解说,继续关注转发!
双速异步电动机的原理图及实物接线图的详细解说,继续关注转发!
利用辅助中间继电器点动连动电动机启动停止控制程序,关注转发!
双速异步电动机的电气原理图及实物接线图的详细解说
1) 双速异步电动机的电气原理 对电气原理图的详解:

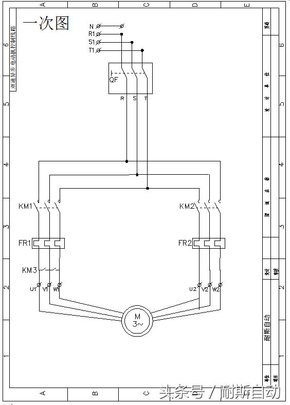
一次图

端子接线图

二次图
N零线,R1、S1、T1为三相进线电源,QF为空气开关,FR1为低速运行热继电器,FR2为高速运行热继电器,KM1为低速运行接触器,KM2为高速运行接触器,KM3为封星接触器,辅助触点的型号是F4-22,3M~为三相异步电动机。备注:电气原理图接触器线圈电压为AC220V。
2) 双速异步电动机的实物连线图:

实物接线图
下面对三速异步电动机正反转的实物连线图进行详解:下面对线的颜色进行讲解:黄色(粗)代表三相电R,绿色(粗)代表三相电S,红色(粗)代表三相电T,黑色(粗)代表零线。
下面讲解控制回路:
首先注意的是:双速电动机定子绕组从一种接法改变为另一种接法时,必须把电源相序反接,以保证电动机的旋转方向不变。
其中SB1、KM1控制电动机△接法下低速运转;SB2、KM2、KM3控制电动机Y接法下高速运转。
线路工作原理如下:先合上电源空开QF。

电机低速运行,运行指示灯LD1就会点亮;电机高速运行,运行指示灯LD2就会点亮。不管是高速还是低速运行,只要电机超负荷运行致使回路失电,报警灯LD3都会点亮,通知用户电机已经停止运行。,备注:此实物连接图中选用的空开为DZ47-63型,接触器为CJX2-2510,线圈电压为AC220V,选接触器时线圈电压千万不要选错,切记切记,报警灯线圈电压为AC220V.希望本文能帮助朋友们,
敬请大家交流学习,在以后的文章中将继续更多的实用电路讲解,希望朋友们能够互相学习。
-
- 河南人怎么了,为啥总是被地域黑
-
2025-02-18 14:24:39
-
- BigBang成员TOP陷入吸毒丑闻,中国粉丝依旧不离不弃
-
2025-02-18 14:22:24
-
- 坐拥1800万粉丝的网红费启明竟然有“两幅面孔”,太让人意外
-
2025-02-18 14:20:09
-
- 镇江新区人社局携多家知名企业到云南机电职业技术学院开展秋季校园招聘
-
2025-02-18 14:17:54
-
- 招摇:原著作者透露结局是悲剧!招摇终将错过厉尘澜?
-
2025-02-18 14:15:39
-
- 新赛季国际斯诺克公开赛激战正酣,五大冠军亮相首轮
-
2025-02-18 14:13:24
-
- 推荐两本好看的美食类小说,刺激你的味蕾!
-
2025-02-18 14:11:09
-
- 她依靠“身体”来挣钱,月入十几万令人羡慕!
-
2025-02-18 14:08:54
-
- 冻龄女神林志玲用了什么明星专用护肤品?和刘宇宁同框简直像兄妹
-
2025-02-18 05:09:12
-
- 注意!这些都是野鸡大学,报了等于白读!附名单
-
2025-02-18 05:06:57
-
- 中国写手之家
-
2025-02-18 05:04:42
-
- 在人类中,什么是雌雄同体?
-
2025-02-18 05:02:27
-
- 史上最美对联大全,有些已经是绝对~喜欢对联的朋友都收藏啦
-
2025-02-18 05:00:12
-
- 农业种植什么前景好、不愁销路?
-
2025-02-18 04:57:57
-
- 高级感手机挡脸女生头像
-
2025-02-18 04:55:42
-
- RNG老板姚金成失信背后:电竞巨头的风雨飘摇
-
2025-02-18 04:53:27
-
- 钟丽缇女儿考拉14岁生日,穿紫色抹胸礼服,身材曼妙颜值改变太大
-
2025-02-18 04:51:12
-
- 一口气看完春秋各国详细地图
-
2025-02-18 04:48:57
-
- 女足世界杯最新积分榜:意大利绝杀,德国6球大胜,摩洛哥垫底
-
2025-02-17 15:59:39
-
- 石金钱龟苗跌至3元
-
2025-02-17 15:57:23



黄宏自曝“被免职”真相:年纪大熬不住,离职退休
ipx7防水级别对照表